Elected Officials
Courts
Departments
Initiatives
Open Government
About
Login / Register
Home
/
Property & Tax Records
/
Property Records
/
Property & Tax Search
/
Parcel Profile
/
Sketches
Search for Another Parcel
Parcel Profile
Historical Card
Sketches
Photos
Tax Map
Taxes
Print View
Address: 623 CHERRY ST
Parcel: 46003011001600
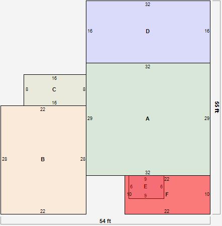
Parcel Sketches
Residential Card 1
A
MAIN
928 square feet
B
FR GR FRAME GARAGE
616 square feet
C
EFP ENCL FRAME PORCH
128 square feet
D
1S FR ONE STORY FRAME
512 square feet
E
OFP OPEN FRAME PORCH
54 square feet
F
OFP OPEN FRAME PORCH
220 square feet