Elected Officials
Courts
Departments
Initiatives
Open Government
About
Login / Register
Home
/
Property & Tax Records
/
Property Records
/
Property & Tax Search
/
Parcel Profile
/
Sketches
Search for Another Parcel
Parcel Profile
Historical Card
Sketches
Photos
Tax Map
Taxes
Print View
Address: 127 E 6 ST
Parcel: 46006016000300
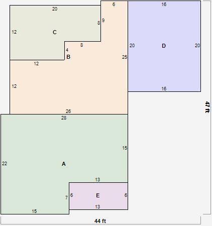
Parcel Sketches
Residential Card 1
A
MAIN
525 square feet
B
1S FR ONE STORY FRAME
422 square feet
C
WDDCK WOOD DECKS
208 square feet
D
FR GR FRAME GARAGE
320 square feet
E
OFP OPEN FRAME PORCH
78 square feet