Elected Officials
Courts
Departments
Initiatives
Open Government
About
Login / Register
Home
/
Property & Tax Records
/
Property Records
/
Property & Tax Search
/
Parcel Profile
/
Sketches
Search for Another Parcel
Parcel Profile
Historical Card
Sketches
Photos
Tax Map
Taxes
Print View
Address: 162 E 4 ST
Parcel: 46006027000400
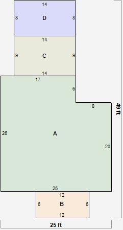
Parcel Sketches
Residential Card 1
A
MAIN
602 square feet
B
MA_PT CONC/MAS PATIO
72 square feet
C
EFP ENCL FRAME PORCH
126 square feet
D
OFP OPEN FRAME PORCH
112 square feet