Elected Officials
Courts
Departments
Initiatives
Open Government
About
Login / Register
Home
/
Property & Tax Records
/
Property Records
/
Property & Tax Search
/
Parcel Profile
/
Sketches
Search for Another Parcel
Parcel Profile
Historical Card
Sketches
Photos
Tax Map
Taxes
Print View
Address: 438 CIRCUIT ST
Parcel: 46007029000101
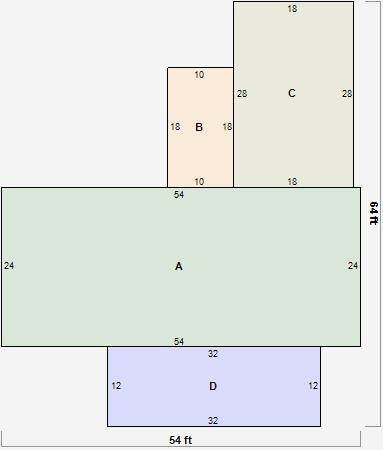
Parcel Sketches
Residential Card 1
A
MAIN
1296 square feet
B
OFP OPEN FRAME PORCH
180 square feet
C
FR UT FRAME UTILITY BUILDING AT UN ATTIC-UNFINISHED
504 square feet
D
WDDCK WOOD DECKS
384 square feet