Elected Officials
Courts
Departments
Initiatives
Open Government
About
Login / Register
Home
/
Property & Tax Records
/
Property Records
/
Property & Tax Search
/
Parcel Profile
/
Sketches
Search for Another Parcel
Parcel Profile
Historical Card
Sketches
Photos
Tax Map
Taxes
Print View
Address: 121 E 1ST ST
Parcel: 46009059000200
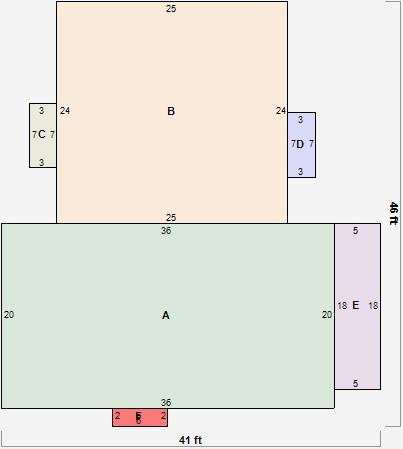
Parcel Sketches
Residential Card 1
A
MAIN
720 square feet
B
UNFIN BSMT BASEMENT UNFINISHED 1S FR ONE STORY FRAME AT UN ATTIC-UNFINISHED
600 square feet
C
OFP OPEN FRAME PORCH
21 square feet
D
EFP ENCL FRAME PORCH
21 square feet
E
EFP ENCL FRAME PORCH
90 square feet
F
MA STOOP/TERR MAS STOOP
12 square feet
Residential Card 2
A
MAIN
640 square feet
B
UNFIN BSMT BASEMENT UNFINISHED 1S FR ONE STORY FRAME
104 square feet
C
EFP ENCL FRAME PORCH
80 square feet