Elected Officials
Courts
Departments
Initiatives
Open Government
About
Login / Register
Home
/
Property & Tax Records
/
Property Records
/
Property & Tax Search
/
Parcel Profile
/
Sketches
Search for Another Parcel
Parcel Profile
Historical Card
Sketches
Photos
Tax Map
Taxes
Print View
Address: 12 E 2ND ST
Parcel: 46010043000400
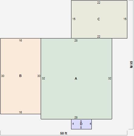
Parcel Sketches
Residential Card 1
A
MAIN
896 square feet
B
1SMAS MASONRY 1SMAS MASONRY
480 square feet
C
FR GR FRAME GARAGE
330 square feet
D
FRBAY FRAME BAY
32 square feet