Elected Officials
Courts
Departments
Initiatives
Open Government
About
Login / Register
Home
/
Property & Tax Records
/
Property Records
/
Property & Tax Search
/
Parcel Profile
/
Sketches
Search for Another Parcel
Parcel Profile
Historical Card
Sketches
Photos
Tax Map
Taxes
Print View
Address: W 2 ST
Parcel: 46011052000201
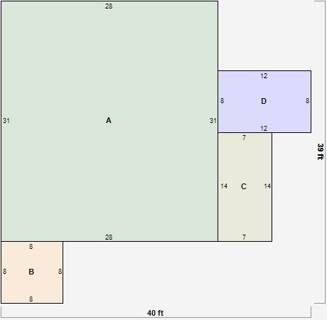
Parcel Sketches
Residential Card 1
A
MAIN
868 square feet
B
WDDCK WOOD DECKS
64 square feet
C
OFP OPEN FRAME PORCH
98 square feet
D
WDDCK WOOD DECKS
96 square feet