Elected Officials
Courts
Departments
Initiatives
Open Government
About
Login / Register
Home
/
Property & Tax Records
/
Property Records
/
Property & Tax Search
/
Parcel Profile
/
Sketches
Search for Another Parcel
Parcel Profile
Historical Card
Sketches
Photos
Tax Map
Taxes
Print View
Address: 11073 ROUTE 19
Parcel: 47002007001300
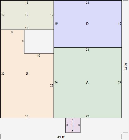
Parcel Sketches
Residential Card 1
A
MAIN
552 square feet
B
1S FR ONE STORY FRAME AT UN ATTIC-UNFINISHED
460 square feet
C
MA_PT CONC/MAS PATIO
180 square feet
D
1S FR ONE STORY FRAME
368 square feet
E
MA STOOP/TERR MAS STOOP
25 square feet