Elected Officials
Courts
Departments
Initiatives
Open Government
About
Login / Register
Home
/
Property & Tax Records
/
Property Records
/
Property & Tax Search
/
Parcel Profile
/
Sketches
Search for Another Parcel
Parcel Profile
Historical Card
Sketches
Photos
Tax Map
Taxes
Print View
Address: 11447 ROUTE 97 N
Parcel: 47009024000100
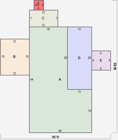
Parcel Sketches
Residential Card 1
A
MAIN
884 square feet
B
MA_PT CONC/MAS PATIO
180 square feet
C
FR UT FRAME UTILITY BUILDING
84 square feet
D
EFP ENCL FRAME PORCH
260 square feet
E
WDDCK WOOD DECKS
64 square feet
F
WDDCK WOOD DECKS
16 square feet