Elected Officials
Courts
Departments
Initiatives
Open Government
About
Login / Register
Home
/
Property & Tax Records
/
Property Records
/
Property & Tax Search
/
Parcel Profile
/
Sketches
Search for Another Parcel
Parcel Profile
Historical Card
Sketches
Photos
Tax Map
Taxes
Print View
Address: 832 SEDGWICK RD
Parcel: 47017037000700
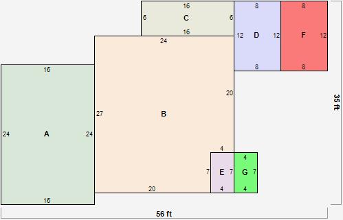
Parcel Sketches
Residential Card 1
A
MAIN
384 square feet
B
UNFIN BSMT BASEMENT UNFINISHED 1S FR ONE STORY FRAME
620 square feet
C
1S FR ONE STORY FRAME
96 square feet
D
EFP ENCL FRAME PORCH
96 square feet
E
OFP OPEN FRAME PORCH
28 square feet
F
WDDCK WOOD DECKS
96 square feet
G
WDDCK WOOD DECKS
28 square feet