Elected Officials
Courts
Departments
Initiatives
Open Government
About
Login / Register
Home
/
Property & Tax Records
/
Property Records
/
Property & Tax Search
/
Parcel Profile
/
Sketches
Search for Another Parcel
Parcel Profile
Historical Card
Sketches
Photos
Tax Map
Taxes
Print View
Address: 123 ROUTE 97
Parcel: 47025084000700
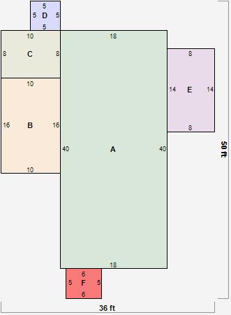
Parcel Sketches
Residential Card 1
A
MAIN
720 square feet
B
UNFIN BSMT BASEMENT UNFINISHED 1S FR ONE STORY FRAME 1/2FR FRAME HALF-STORY
160 square feet
C
EFP ENCL FRAME PORCH
80 square feet
D
MA STOOP/TERR MAS STOOP
25 square feet
E
UNFIN BSMT BASEMENT UNFINISHED 1S FR ONE STORY FRAME
112 square feet
F
MA STOOP/TERR MAS STOOP
30 square feet