Elected Officials
Courts
Departments
Initiatives
Open Government
About
Login / Register
Home
/
Property & Tax Records
/
Property Records
/
Property & Tax Search
/
Parcel Profile
/
Sketches
Search for Another Parcel
Parcel Profile
Historical Card
Sketches
Photos
Tax Map
Taxes
Print View
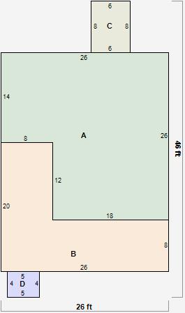
Address: 34 LAFAYETTE AVE
Parcel: 47026083001000
Parcel Sketches
Residential Card 1
A
MAIN
580 square feet
B
1S FR ONE STORY FRAME
304 square feet
C
MA STOOP/TERR MAS STOOP
48 square feet
D
MA STOOP/TERR MAS STOOP
20 square feet