Elected Officials
Courts
Departments
Initiatives
Open Government
About
Login / Register
Home
/
Property & Tax Records
/
Property Records
/
Property & Tax Search
/
Parcel Profile
/
Sketches
Search for Another Parcel
Parcel Profile
Historical Card
Sketches
Photos
Tax Map
Taxes
Print View
Address: 1363 SEDGWICK RD
Parcel: 47028065000501
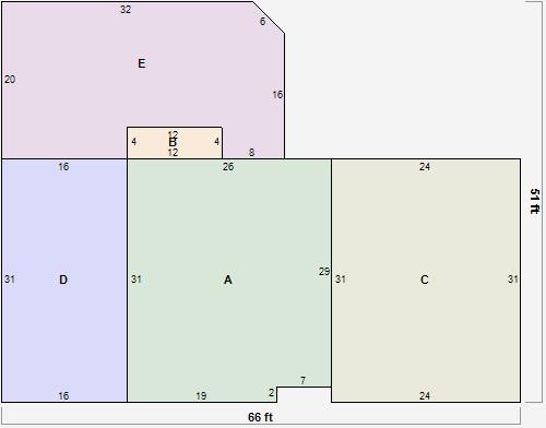
Parcel Sketches
Residential Card 1
A
MAIN
792 square feet
B
1SMAS MASONRY
48 square feet
C
MG/BG MASONRY/BRICK GARAGE PART ATTIC FINISHED
744 square feet
D
UNFIN BSMT BASEMENT UNFINISHED 1SMAS MASONRY
496 square feet
E
WDDCK WOOD DECKS
664 square feet