Elected Officials
Courts
Departments
Initiatives
Open Government
About
Login / Register
Home
/
Property & Tax Records
/
Property Records
/
Property & Tax Search
/
Parcel Profile
/
Sketches
Search for Another Parcel
Parcel Profile
Historical Card
Sketches
Photos
Tax Map
Taxes
Print View
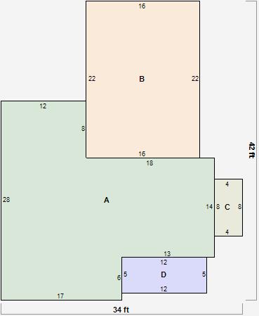
Address: 1422 OLD STATE RD
Parcel: 47028065000600
Parcel Sketches
Residential Card 1
A
MAIN
618 square feet
B
1S FR ONE STORY FRAME
352 square feet
C
FRBAY FRAME BAY
32 square feet
D
OFP OPEN FRAME PORCH
60 square feet