Elected Officials
Courts
Departments
Initiatives
Open Government
About
Login / Register
Home
/
Property & Tax Records
/
Property Records
/
Property & Tax Search
/
Parcel Profile
/
Sketches
Search for Another Parcel
Parcel Profile
Historical Card
Sketches
Photos
Tax Map
Taxes
Print View
Address: 12 HULL RD
Parcel: 47030071001300
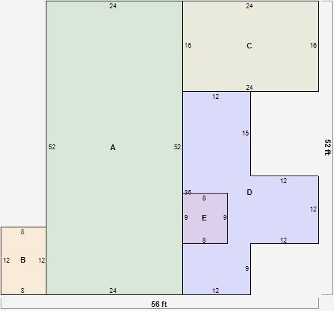
Parcel Sketches
Residential Card 1
A
MAIN
1248 square feet
B
EFP ENCL FRAME PORCH
96 square feet
C
UNFIN BSMT BASEMENT UNFINISHED 1S FR ONE STORY FRAME
384 square feet
D
WDDCK WOOD DECKS
576 square feet
E
1S FR ONE STORY FRAME
72 square feet