Elected Officials
Courts
Departments
Initiatives
Open Government
About
Login / Register
Home
/
Property & Tax Records
/
Property Records
/
Property & Tax Search
/
Parcel Profile
/
Sketches
Search for Another Parcel
Parcel Profile
Historical Card
Sketches
Photos
Tax Map
Taxes
Print View
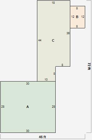
Address: 14223 MIDDLETON RD
Parcel: 47033049000401
Parcel Sketches
Residential Card 1
A
MAIN
840 square feet
B
MA_PT CONC/MAS PATIO
96 square feet
C
UNFIN BSMT BASEMENT UNFINISHED 1S FR ONE STORY FRAME
728 square feet