Elected Officials
Courts
Departments
Initiatives
Open Government
About
Login / Register
Home
/
Property & Tax Records
/
Property Records
/
Property & Tax Search
/
Parcel Profile
/
Sketches
Search for Another Parcel
Parcel Profile
Historical Card
Sketches
Photos
Tax Map
Taxes
Print View
Address: 14357 MAIN ST
Parcel: 48001002000800
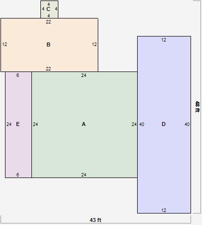
Parcel Sketches
Residential Card 1
A
MAIN
576 square feet
B
1S FR ONE STORY FRAME
264 square feet
C
OFP OPEN FRAME PORCH
16 square feet
D
FR GR FRAME GARAGE
480 square feet
E
CANPY CANOPY
144 square feet