Elected Officials
Courts
Departments
Initiatives
Open Government
About
Login / Register
Home
/
Property & Tax Records
/
Property Records
/
Property & Tax Search
/
Parcel Profile
/
Sketches
Search for Another Parcel
Parcel Profile
Historical Card
Sketches
Photos
Tax Map
Taxes
Print View
Address: 16700 SCIOTA RD
Parcel: 49003006001400
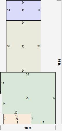
Parcel Sketches
Residential Card 1
A
MAIN
1207 square feet
B
OFP OPEN FRAME PORCH
133 square feet
C
MG/BG MASONRY/BRICK GARAGE
864 square feet
D
OFP OPEN FRAME PORCH
336 square feet