Elected Officials
Courts
Departments
Initiatives
Open Government
About
Login / Register
Home
/
Property & Tax Records
/
Property Records
/
Property & Tax Search
/
Parcel Profile
/
Sketches
Search for Another Parcel
Parcel Profile
Historical Card
Sketches
Photos
Tax Map
Taxes
Print View
Address: 12538 ROUTE 6
Parcel: 49017043001600
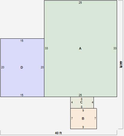
Parcel Sketches
Residential Card 1
A
MAIN
825 square feet
B
WDDCK WOOD DECKS
63 square feet
C
EFP ENCL FRAME PORCH
32 square feet
D
1S FR ONE STORY FRAME
300 square feet