Elected Officials
Courts
Departments
Initiatives
Open Government
About
Login / Register
Home
/
Property & Tax Records
/
Property Records
/
Property & Tax Search
/
Parcel Profile
/
Sketches
Search for Another Parcel
Parcel Profile
Historical Card
Sketches
Photos
Tax Map
Taxes
Print View
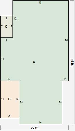
Address: 1708 MARKET ST
Parcel: 50001005000500
Parcel Sketches
Residential Card 1
A
MAIN
720 square feet
B
OFP OPEN FRAME PORCH
72 square feet
C
EFP ENCL FRAME PORCH
28 square feet