Elected Officials
Courts
Departments
Initiatives
Open Government
About
Login / Register
Home
/
Property & Tax Records
/
Property Records
/
Property & Tax Search
/
Parcel Profile
/
Sketches
Search for Another Parcel
Parcel Profile
Historical Card
Sketches
Photos
Tax Map
Taxes
Print View
Address: 2021 CENTER ST
Parcel: 50002019000900
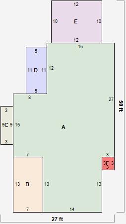
Parcel Sketches
Residential Card 1
A
MAIN
734 square feet
B
EFP ENCL FRAME PORCH
91 square feet
C
FRBAY FRAME BAY
27 square feet
D
WDDCK WOOD DECKS
55 square feet
E
1S FR ONE STORY FRAME
120 square feet
F
1S FR ONE STORY FRAME
9 square feet