Elected Officials
Courts
Departments
Initiatives
Open Government
About
Login / Register
Home
/
Property & Tax Records
/
Property Records
/
Property & Tax Search
/
Parcel Profile
/
Sketches
Search for Another Parcel
Parcel Profile
Historical Card
Sketches
Photos
Tax Map
Taxes
Print View
Address: 3413 SOUTH ST
Parcel: 50002033000300
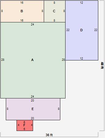
Parcel Sketches
Residential Card 1
A
MAIN
672 square feet
B
WDDCK WOOD DECKS
128 square feet
C
EFP ENCL FRAME PORCH
64 square feet
D
MA_PT CONC/MAS PATIO
264 square feet
E
EFP ENCL FRAME PORCH
160 square feet
F
WDDCK WOOD DECKS
24 square feet