Elected Officials
Courts
Departments
Initiatives
Open Government
About
Login / Register
Home
/
Property & Tax Records
/
Property Records
/
Property & Tax Search
/
Parcel Profile
/
Sketches
Search for Another Parcel
Parcel Profile
Historical Card
Sketches
Photos
Tax Map
Taxes
Print View
Address: 3522 EDISON AVE
Parcel: 50002036000400
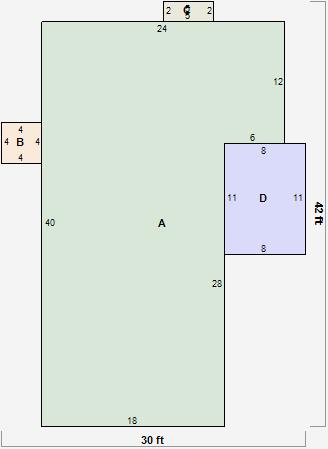
Parcel Sketches
Residential Card 1
A
MAIN
792 square feet
B
MA STOOP/TERR MAS STOOP
16 square feet
C
MA STOOP/TERR MAS STOOP
10 square feet
D
EFP ENCL FRAME PORCH
88 square feet