Elected Officials
Courts
Departments
Initiatives
Open Government
About
Login / Register
Home
/
Property & Tax Records
/
Property Records
/
Property & Tax Search
/
Parcel Profile
/
Sketches
Search for Another Parcel
Parcel Profile
Historical Card
Sketches
Photos
Tax Map
Taxes
Print View
Address: 1012721 STATION RD
Parcel: 50003021000902
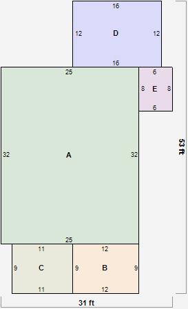
Parcel Sketches
Residential Card 1
A
MAIN
800 square feet
B
EMP ENCL MASONRY PORCH
108 square feet
C
OMP OPEN MASONRY PORCH
99 square feet
D
OFP OPEN FRAME PORCH
192 square feet
E
FR UT FRAME UTILITY BUILDING
48 square feet