Elected Officials
Courts
Departments
Initiatives
Open Government
About
Login / Register
Home
/
Property & Tax Records
/
Property Records
/
Property & Tax Search
/
Parcel Profile
/
Sketches
Search for Another Parcel
Parcel Profile
Historical Card
Sketches
Photos
Tax Map
Taxes
Print View
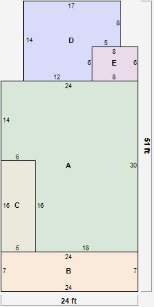
Address: 2118 STATION RD
Parcel: 50003031000500
Parcel Sketches
Residential Card 1
A
MAIN
624 square feet
B
OFP OPEN FRAME PORCH
168 square feet
C
EFP ENCL FRAME PORCH
96 square feet
D
WDDCK WOOD DECKS
208 square feet
E
EFP ENCL FRAME PORCH
48 square feet