Elected Officials
Courts
Departments
Initiatives
Open Government
About
Login / Register
Home
/
Property & Tax Records
/
Property Records
/
Property & Tax Search
/
Parcel Profile
/
Sketches
Search for Another Parcel
Parcel Profile
Historical Card
Sketches
Photos
Tax Map
Taxes
Print View
Address: 2302 TAGGERT ST
Parcel: 50004028000800
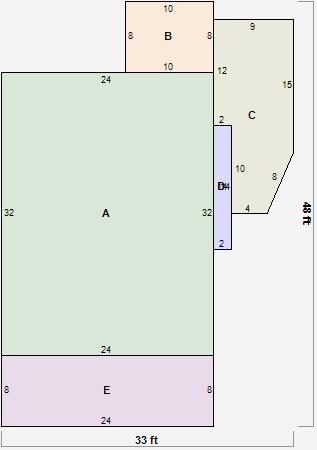
Parcel Sketches
Residential Card 1
A
MAIN
768 square feet
B
UNFIN BSMT BASEMENT UNFINISHED 1S FR ONE STORY FRAME
80 square feet
C
WDDCK WOOD DECKS
168 square feet
D
FROVR FRAME OVERHANG
28 square feet
E
EFP ENCL FRAME PORCH
192 square feet