Elected Officials
Courts
Departments
Initiatives
Open Government
About
Login / Register
Home
/
Property & Tax Records
/
Property Records
/
Property & Tax Search
/
Parcel Profile
/
Sketches
Search for Another Parcel
Parcel Profile
Historical Card
Sketches
Photos
Tax Map
Taxes
Print View
Address: 3115 ROSE AVE
Parcel: 50004043000500
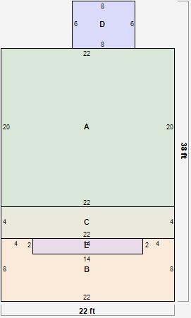
Parcel Sketches
Residential Card 1
A
MAIN
440 square feet
B
OFP OPEN FRAME PORCH
148 square feet
C
UNFIN BSMT BASEMENT UNFINISHED 1S FR ONE STORY FRAME AT FN ATTIC-FINISHED
88 square feet
D
EFP ENCL FRAME PORCH
48 square feet
E
EFP ENCL FRAME PORCH 1S FR ONE STORY FRAME
28 square feet