Elected Officials
Courts
Departments
Initiatives
Open Government
About
Login / Register
Home
/
Property & Tax Records
/
Property Records
/
Property & Tax Search
/
Parcel Profile
/
Sketches
Search for Another Parcel
Parcel Profile
Historical Card
Sketches
Photos
Tax Map
Taxes
Print View
Address: 3016 WOODLAWN AVE
Parcel: 50004044001500
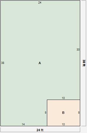
Parcel Sketches
Residential Card 1
A
MAIN
832 square feet
B
EMP ENCL MASONRY PORCH
80 square feet