Elected Officials
Courts
Departments
Initiatives
Open Government
About
Login / Register
Home
/
Property & Tax Records
/
Property Records
/
Property & Tax Search
/
Parcel Profile
/
Sketches
Search for Another Parcel
Parcel Profile
Historical Card
Sketches
Photos
Tax Map
Taxes
Print View
Address: 2729 SHANNON RD
Parcel: 50006071000500
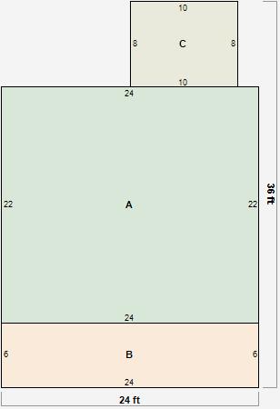
Parcel Sketches
Residential Card 1
A
MAIN
528 square feet
B
OFP OPEN FRAME PORCH
144 square feet
C
WDDCK WOOD DECKS
80 square feet