Elected Officials
Courts
Departments
Initiatives
Open Government
About
Login / Register
Home
/
Property & Tax Records
/
Property Records
/
Property & Tax Search
/
Parcel Profile
/
Print View
Search for Another Parcel
Parcel Profile
Historical Card
Sketches
Photos
Tax Map
Taxes
Print View
Print This Page
Address: 1540 W 6 ST
Parcel: 17041011020000
Parcel Profile
Address
1540 | W | 6 | ST
Street Status
PAVED | SIDEWALK
School District
CITY OF ERIE SCHOOL
Acreage
0.4821
Classification
R
Land Use Code
SINGLE FAMILY
Legal Description
1540 W 6 ST 140 X 150
Square Feet
2630
Topo
LEVEL
Utility
ALL PUBLIC
Zoning
Please contact your municipal zoning officer
Deed Book
0212
Deed Page
1518
2026 Tax Values
Land Value / Taxable
52,500 / 52,500.00
Building Value / Taxable
224,400 / 224,400.00
Total Value / Taxable
276,900 / 276,900.00
Clean & Green
Inactive
Homestead Status
Active
Farmstead Status
Inactive
Lerta Amount
0
Lerta Expiration Year
0
Residential Data
Card 1
Style
CONVENTIONAL
Basement
FULL
Year Built
1929
Exterior Wall
BRICK
Total Living Area
2630
Full Baths
2
Half Baths
1
Fuel Type
GAS
Heating
CENTRAL
Heating System
HOT WATER
Stories
2.0
Total Bedrooms
4
Total Family Rooms
0
Total Rooms
8
Fireplaces
0
Other Buildings & Yards
Description
Built
Width
Length
Area
FRAME OR CB DETACHED GARAGE
1929
22
30
660
REINFORCED CONCRETE POOL
1997
16
30
480
CONCRET PATIO, DETACHED
1997
0
0
91
FRAME UTILITY SHED
1997
13
14
182
Sales History
Sale Date
Type
Price
Book / Page
Other Info
5/19/1992
0
0212 / 1518
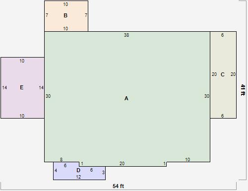
Parcel Sketches
Residential Card 1
A
MAIN
1160 square feet
B
1SMAS MASONRY
70 square feet
C
UNFIN BSMT BASEMENT UNFINISHED 1SMAS MASONRY 1SMAS MASONRY
120 square feet
D
EMP ENCL MASONRY PORCH
42 square feet
E
CARPT CARPORT
140 square feet
Parcel Images
Please note:
this tab is for informational purposes only and may not show all delinquencies, see the Taxes tab for more accurate delinquent taxes due.