Elected Officials
Courts
Departments
Initiatives
Open Government
About
Login / Register
Home
/
Property & Tax Records
/
Property Records
/
Property & Tax Search
/
Parcel Profile
/
Print View
Search for Another Parcel
Parcel Profile
Historical Card
Sketches
Photos
Tax Map
Taxes
Print View
Print This Page
Address: 10049 BUFFALO RD
Parcel: 37019070000200
Parcel Profile
Address
10049 | BUFFALO | RD
Street Status
PAVED
School District
NORTH EAST SCHOOL
Acreage
0.9137
Classification
R
Land Use Code
SINGLE FAMILY
Legal Description
10049 W MAIN RD 157.4X505.7X477.3
Square Feet
1480
Topo
LEVEL
Utility
PUBLIC WATER | GAS | SEPTIC
Zoning
Please contact your municipal zoning officer
Deed Book
2019
Deed Page
014575
2026 Tax Values
Land Value / Taxable
39,000 / 39,000.00
Building Value / Taxable
85,500 / 85,500.00
Total Value / Taxable
124,500 / 124,500.00
Clean & Green
Inactive
Homestead Status
Inactive
Farmstead Status
Inactive
Lerta Amount
0
Lerta Expiration Year
0
Residential Data
Card 1
Style
CONVENTIONAL
Basement
FULL
Year Built
1900
Exterior Wall
FRAME
Total Living Area
1480
Full Baths
1
Half Baths
0
Fuel Type
GAS
Heating
CENTRAL
Heating System
FORCED AIR
Stories
2.0
Total Bedrooms
4
Total Family Rooms
0
Total Rooms
8
Fireplaces
0
Other Buildings & Yards
Description
Built
Width
Length
Area
FRAME OR CB DETACHED GARAGE
1997
24
24
576
FRAME UTILITY SHED
1970
15
30
450
FLAT BARN
1992
20
30
600
FRAME OR CB DETACHED GARAGE
1992
10
30
300
Sales History
Sale Date
Type
Price
Book / Page
Other Info
7/29/2019
LAND & BUILDING
155722
2019 / 014575
SPECIAL WARRANTY DEED
7/29/2019
LAND & BUILDING
0
2019 / 014574
QUIT CLAIM DEED
9/2/1997
0
0516 / 1539
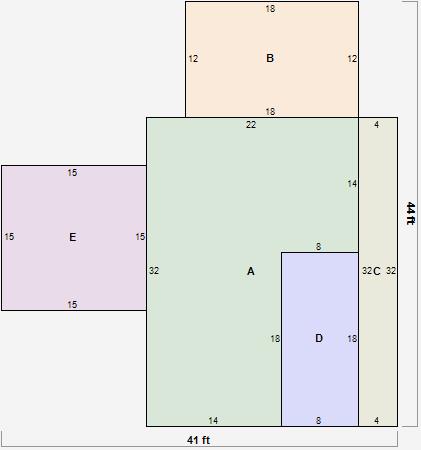
Parcel Sketches
Residential Card 1
A
MAIN
560 square feet
B
1S FR ONE STORY FRAME
216 square feet
C
OFP OPEN FRAME PORCH
128 square feet
D
UNFIN BSMT BASEMENT UNFINISHED EFP ENCL FRAME PORCH 1S FR ONE STORY FRAME
144 square feet
E
MA_PT CONC/MAS PATIO
225 square feet
Parcel Images
Please note:
this tab is for informational purposes only and may not show all delinquencies, see the Taxes tab for more accurate delinquent taxes due.