Elected Officials
Courts
Departments
Initiatives
Open Government
About
Login / Register
Home
/
Property & Tax Records
/
Property Records
/
Property & Tax Search
/
Parcel Profile
/
Sketches
Search for Another Parcel
Parcel Profile
Historical Card
Sketches
Photos
Tax Map
Taxes
Print View
Address: 8727 CROSSINGVILLE RD
Parcel: 13022052000800
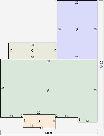
Parcel Sketches
Residential Card 2
A
MAIN
2156 square feet
B
OFP OPEN FRAME PORCH 1/2FR FRAME HALF-STORY
169 square feet
C
OFP OPEN FRAME PORCH
300 square feet
D
FR GR FRAME GARAGE
900 square feet