Elected Officials
Courts
Departments
Initiatives
Open Government
About
Login / Register
Home
/
Property & Tax Records
/
Property Records
/
Property & Tax Search
/
Parcel Profile
/
Sketches
Search for Another Parcel
Parcel Profile
Historical Card
Sketches
Photos
Tax Map
Taxes
Print View
Address: 606 E 10 ST
Parcel: 15020031012600
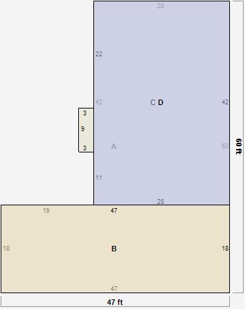
Parcel Sketches
Commercial Card 1
A
MAIN
2022 square feet
B
MAIN
846 square feet
C
MAIN
1203 square feet
D
MAIN
1092 square feet