Elected Officials
Courts
Departments
Initiatives
Open Government
About
Login / Register
Home
/
Property & Tax Records
/
Property Records
/
Property & Tax Search
/
Parcel Profile
/
Sketches
Search for Another Parcel
Parcel Profile
Historical Card
Sketches
Photos
Tax Map
Taxes
Print View
Address: 352 W 8 ST
Parcel: 17040010012500
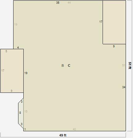
Parcel Sketches
Commercial Card 1
A
MAIN
2269 square feet
B
MAIN
2269 square feet
C
MAIN
1983 square feet
Commercial Card 2
A
MAIN
680 square feet
B
MAIN
761 square feet
C
MAIN
680 square feet