Elected Officials
Courts
Departments
Initiatives
Open Government
About
Login / Register
Home
/
Property & Tax Records
/
Property Records
/
Property & Tax Search
/
Parcel Profile
/
Sketches
Search for Another Parcel
Parcel Profile
Historical Card
Sketches
Photos
Tax Map
Taxes
Print View
Address: 437 W 7 ST
Parcel: 17040013011700
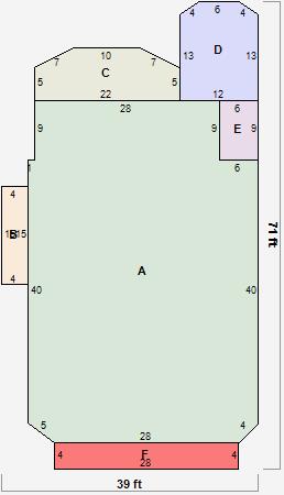
Parcel Sketches
Residential Card 1
A
MAIN
1747 square feet
B
1S FR ONE STORY FRAME
60 square feet
C
WDDCK WOOD DECKS
158 square feet
D
WDDCK WOOD DECKS
174 square feet
E
UNFIN BSMT BASEMENT UNFINISHED OFP OPEN FRAME PORCH 1S FR ONE STORY FRAME
54 square feet
F
OFP OPEN FRAME PORCH
112 square feet