Elected Officials
Courts
Departments
Initiatives
Open Government
About
Login / Register
Home
/
Property & Tax Records
/
Property Records
/
Property & Tax Search
/
Parcel Profile
/
Sketches
Search for Another Parcel
Parcel Profile
Historical Card
Sketches
Photos
Tax Map
Taxes
Print View
Address: 533 SMITHSON AVE
Parcel: 29013024000601
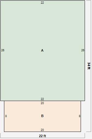
Parcel Sketches
Residential Card 1
A
MAIN
572 square feet
B
1SMAS MASONRY
160 square feet