Elected Officials
Courts
Departments
Initiatives
Open Government
About
Login / Register
Home
/
Property & Tax Records
/
Property Records
/
Property & Tax Search
/
Parcel Profile
/
Sketches
Search for Another Parcel
Parcel Profile
Historical Card
Sketches
Photos
Tax Map
Taxes
Print View
Address: 2328 2404 POWELL AVE
Parcel: 33045227000700
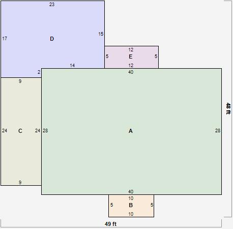
Parcel Sketches
Residential Card 1
A
MAIN
1120 square feet
B
OFP OPEN FRAME PORCH
50 square feet
C
EFP ENCL FRAME PORCH
216 square feet
D
WDDCK WOOD DECKS
363 square feet
E
EFP ENCL FRAME PORCH
60 square feet
Residential Card 2
A
MAIN
588 square feet
B
MA_PT CONC/MAS PATIO
70 square feet
C
FR UT FRAME UTILITY BUILDING
252 square feet