Elected Officials
Courts
Departments
Initiatives
Open Government
About
Login / Register
Home
/
Property & Tax Records
/
Property Records
/
Property & Tax Search
/
Parcel Profile
/
Sketches
Search for Another Parcel
Parcel Profile
Historical Card
Sketches
Photos
Tax Map
Taxes
Print View
Address: 1391 FREEPORT RD
Parcel: 37005046000100
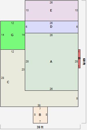
Parcel Sketches
Residential Card 1
A
MAIN
728 square feet
B
MA STOOP/TERR MAS STOOP
56 square feet
C
UNFIN BSMT BASEMENT UNFINISHED 1S FR ONE STORY FRAME
544 square feet
D
UNFIN BSMT BASEMENT UNFINISHED 1S FR ONE STORY FRAME
156 square feet
E
WDDCK WOOD DECKS
260 square feet
F
FRBAY FRAME BAY
9 square feet
G
1S FR ONE STORY FRAME
168 square feet