Elected Officials
Courts
Departments
Initiatives
Open Government
About
Login / Register
Home
/
Property & Tax Records
/
Property Records
/
Property & Tax Search
/
Parcel Profile
/
Sketches
Search for Another Parcel
Parcel Profile
Historical Card
Sketches
Photos
Tax Map
Taxes
Print View
Address: BUFFALO -STINSON RD
Parcel: 37016030000201
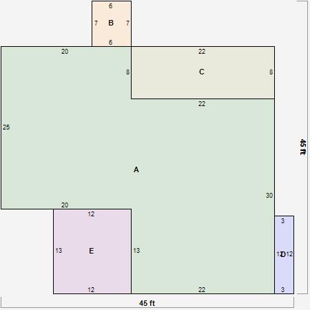
Parcel Sketches
Residential Card 1
A
MAIN
1160 square feet
B
OFP OPEN FRAME PORCH
42 square feet
C
OFP OPEN FRAME PORCH
176 square feet
D
FRBAY FRAME BAY
36 square feet
E
EFP ENCL FRAME PORCH
156 square feet