Elected Officials
Courts
Departments
Initiatives
Open Government
About
Login / Register
Home
/
Property & Tax Records
/
Property Records
/
Property & Tax Search
/
Parcel Profile
/
Sketches
Search for Another Parcel
Parcel Profile
Historical Card
Sketches
Photos
Tax Map
Taxes
Print View
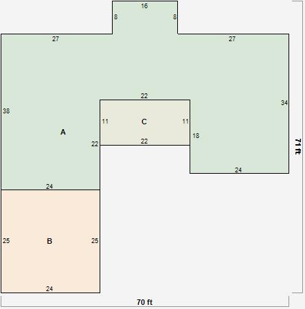
Address: 12381 FRY RD
Parcel: 45021045002700
Parcel Sketches
Residential Card 1
A
MAIN
2208 square feet
B
FR GR FRAME GARAGE
600 square feet
C
MA_PT CONC/MAS PATIO
242 square feet