Elected Officials
Courts
Departments
Initiatives
Open Government
About
Login / Register
Home
/
Property & Tax Records
/
Property Records
/
Property & Tax Search
/
Parcel Profile
/
Sketches
Search for Another Parcel
Parcel Profile
Historical Card
Sketches
Photos
Tax Map
Taxes
Print View
Address: 3105 09 BUFFALO RD
Parcel: 50003021000200
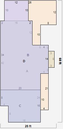
Parcel Sketches
Commercial Card 1
A
MAIN
100 square feet
B
MAIN
1140 square feet
C
MAIN
256 square feet
D
MAIN
1066 square feet
Commercial Card 2
A
MAIN
240 square feet
B
MAIN
480 square feet
C
MAIN
480 square feet
D
MAIN
240 square feet