Elected Officials
Courts
Departments
Initiatives
Open Government
About
Login / Register
Home
/
Property & Tax Records
/
Property Records
/
Property & Tax Search
/
Parcel Profile
/
Sketches
Search for Another Parcel
Parcel Profile
Historical Card
Sketches
Photos
Tax Map
Taxes
Print View
Address: 14361 TRACY RD
Parcel: 04023077000500
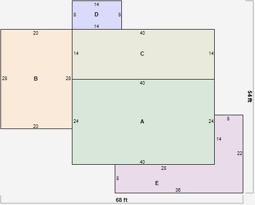
Parcel Sketches
Residential Card 1
A
MAIN
960 square feet
B
FR UT FRAME UTILITY BUILDING
560 square feet
C
1S FR ONE STORY FRAME
560 square feet
D
OFP OPEN FRAME PORCH
112 square feet
E
OFP OPEN FRAME PORCH
400 square feet